03 · 2024
Houten bureaulamp
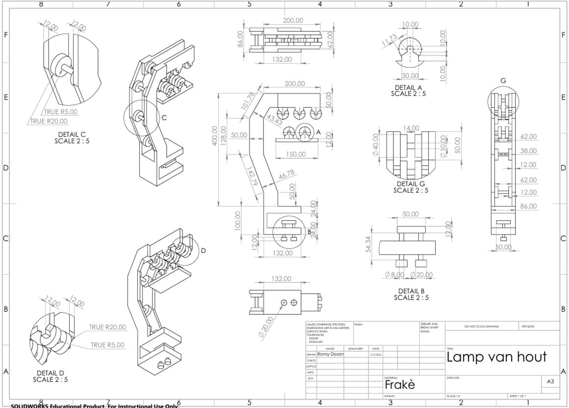
Van groepsonderzoek tot maakbaar eindproduct: een houten bureaulamp die techniek en design samenbrengt.

Rol
Individueel ontwerp en groepsonderzoek
Jaar
september 2024 — november 2024
Tools
Schetsen · SolidWorks · Prototyping
Context
Project periode 1, integraal ontwerpen van een gebruiksproduct.
De opdracht
De opdracht was om als junior ontwerper een duurzame houten bureaulamp te ontwerpen voor de souvenirshop van een design of kunstmuseum.
De lamp moest voldoen aan meerdere eisen:
- Mechanisch verstelbaar in hoogte
- Te bevestigen aan een bureau
- Door de gebruiker zelf te monteren
- Vormgegeven in de stijl van een Nederlandse ontwerper
De uitdaging lag in het combineren van functionaliteit, maakbaarheid en esthetiek, binnen duidelijke technische en ontwerpgerichte randvoorwaarden.
Het resultaat
Het eindresultaat is een werkende houten bureaulamp met:
- Een verstelbaar mechanisme
- Een klemconstructie voor bevestiging aan het bureau
- Een ontwerp dat aansluit bij een gekozen Nederlandse ontwerper
- Een constructie die door de gebruiker zelf te monteren is
Fijn verslag, compleet, aandacht voor schetsboek en gebruiksonderzoek alsook bouwplan zijn boven niveau. APA richtlijnen toegepast
De aanpak & mijn rol
Het project is gestart in een groep van 4, waarbij gezamenlijk de onderzoeksfase is uitgevoerd. Vanaf hoofdstuk 4 heb ik het project volledig zelfstandig uitgewerkt. Mijn bijdrage in de groepsfase:
- Uitwerken van onderdelen van de analyses (o.a. gebruiksanalyse en PvE)
- Meedenken in conceptontwikkeling en onderzoeksrichtingen
Mijn individuele aanpak (belangrijkste deel)
Genereren en schetsen van meerdere concepten Selecteren en uitwerken van een eindconcept Ontwerpen van het mechanisme en de constructie Uitwerken van materiaalkeuzes en bouwplan Realiseren van een fysiek model in de werkplaats Testen van het product met gebruikers Evalueren en reflecteren op het ontwerp en proces Hierbij heb ik het volledige ontwerpproces doorlopen: van idee tot werkend eindproduct.
Een goed antwoord op de opdracht
Het resultaat is een goed antwoord op de opdracht omdat:
- Het ontwerp voldoet aan alle gestelde eisen en randvoorwaarden
- Functionaliteit (verstelbaarheid en montage) goed is geïntegreerd
- Het product daadwerkelijk gemaakt en getest is
- Het ontwerp gebaseerd is op onderzoek en analyses
- Een ontwerpproces zelfstandig kan doorlopen en afronden
- Ideeën kan vertalen naar een maakbaar product
- Techniek, vormgeving en gebruik kan combineren
- Kan reflecteren en mijn werk kan verbeteren





